Haus mit Flachdach Variante 117

 

 

 

 

Grundriss Erdgeschoss

 

 

 

 

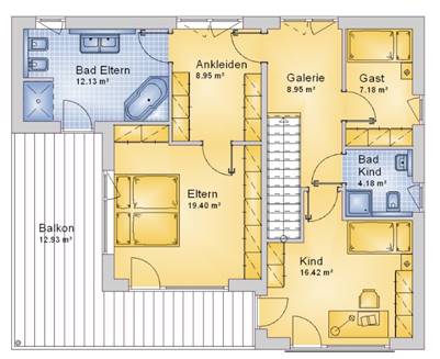
Grundriss Obergeschoss